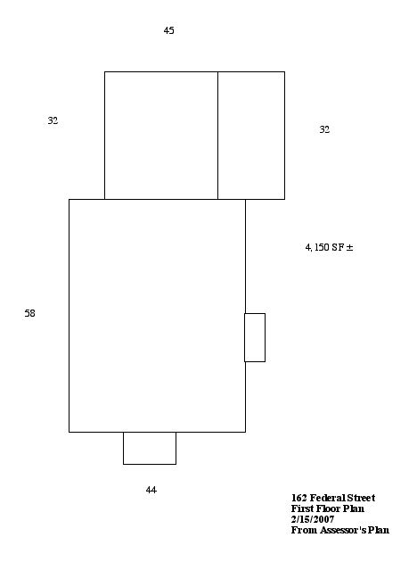
162 Federal Street

Saint James Catholic Church Convent

Photos and Staticstics

Photos of exterior February, 2007
Basic Floor Plan February, 2007